
Крошечный дом в форме бабочки.
Жизнь в крошечных домах все так же остается популярным трендом, распространяясь по всему миру. Некоторые проекты превратились, если не в культовые, то уж точно привлекают к себе внимание. Не стала исключением и модель Swallowtail от австралийского производителя Tiny House Company, которая заслуживает широкого признания за мастерское сочетание дизайна, прочной и долговечной конструкции, гибкой планировки и невероятной практичности.

Вневременная модель Swallowtail.
Австралийская компания Tiny House Company из Солсбери, специализирующаяся на проектировании и строительстве крошеных домов, недавно представила новую и самую потрясающую модель мини-жилища. Названая Swallowtail («Ласточкин хвост»), она олицетворяет вневременной дизайн, надежность, долговечность и максимальную практичность. А все потому, что помимо привлекательной формы и стильного оформления экстерьера, эта модель разработана таким образом, чтобы расти и расширяться по мере изменения потребностей владельцев (не в размерах, а в плане удобств, конечно же). «Сбалансированный дом не может оставаться неизменным вечно, он должен адаптироваться к изменениям внутри семьи с течением времени», – обоснованно считают разработчики.

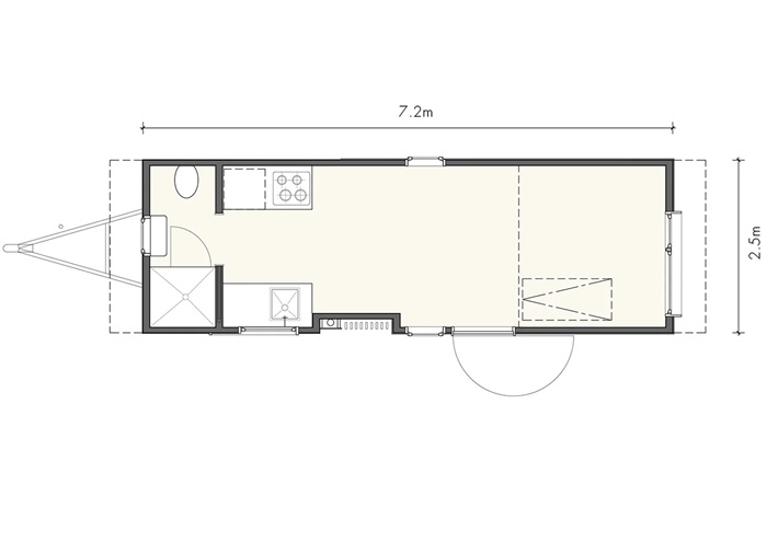
План модели Swallowtail. | Фото: tinyhousecompany.com.au.

Фасад облицован фактурной фанерой и профлистом.
Прежде всего, этот впечатляющий дом был спроектирован в гармонии с природой и может выдерживать определенные погодные трудности, такие как сильная жара или мощные ветры. Чтобы крошечное убежище длиной всего 7,2 метра и шириной 2,4 м могло поддерживать оптимальную температуру внутри, защищая жилое пространство от влаги, холода и ветра, разработчики позаботились о надлежащей теплоизоляции крыши, пола и стен, а также использовали прочную облицовку, обеспечивающую водонепроницаемость и ветроустойчивость.

Открытая планировка Swallowtail.
Примечательно: Несмотря на то, что практичный мобильный дом спроектирован таким образом, чтобы оставаться сухим внутри, его крыша в форме бабочки стала скрытой основой системы сбора воды. Оснащенная встроенным водосточным желобом и трубой, элегантно скрытыми за деревянным экраном, она вносит свою лепту в самодостаточность дома, которую поддерживают: солнечные панели, газовые баллоны, система очистки дождевой воды и стоков.

Домашний офис.
Потрясающей эстетике крошечного дома поспособствовала не только его форма и облицовка с использованием различных материалов и фактур, большие стеклянные двери и окна придают строению особый шарм. При этом они не только делают жилое пространство более светлым и объемным, каждый элемент расположен так, чтобы обеспечить естественную сквозную вентиляцию. Стратегически грамотное расположение дверей и окон позволяет в будущем расширять пространство за счет встроенной мебели и других элементов в соответствии с бюджетом и пожеланием владельцев. Кстати, прекрасным дополнением к общей идее комфортного и привлекательного дома стали стеклянные жалюзи, установленные на всех окнах.

Лестница прячется в конструкцию перекрытия.

Подъемно-складная лестница.
Авторы Novate.ru хотели бы отметить, что благодаря отсутствию встроенной мебели или шкафов и наличию выдвижной лестницы в основной жилой зоне, возможны различные варианты планировки. Таким образом, Swallowtail может адаптироваться к меняющимся потребностям владельцев независимо от того, используется он в качестве основного жилья, дачи, студии, офиса, дополнительной жилой площади на заднем дворе и др. Несмотря на то, что лофты обычно становятся уютными спальнями, такое распределение жилых зон подходит не всем. Конструкция же Swallowtail позволяет разместить спальное место на любом из уровней. Универсальность этого жилого пространства повышается за счет использования особой лестницы вместо громоздкой лестничной клетки. Она совсем не занимает места, поскольку «исчезает» в потолке, когда не используется.

Современная кухня в Swallowtail.
Кухонная зона также более универсальна, чем в большинстве домов. Здесь достаточно места как для обеденного стола, так и для отдельного рабочего, без использования встроенной мебели или барных стоек. Несмотря на наличие всего необходимого, кухня спроектирована таким образом, чтобы со временем ее можно было расширять, когда владельцы задумают добавить что-то или внести изменения. Еще одна оригинальная особенность — зеркальный фартук во всю ширину кухни. Отражая окно на противоположной стороне, оно увеличивает пространство, делая его более глубоким и светлым.

Гостиная легко превращается в спальню.
Под лофтовым уровнем предусмотрена гостиная с диваном-кроватью, который может стать основным местом для сна или развлекательной зоной. Наличие окон и близость стеклянных дверей делает это пространство особенно светлым и информативным, поскольку можно при любой погоде наблюдать за окружающим миром.

Благоустроенная ванная комната.
Несмотря на максимальную гибкость планировки, проектом предусмотрена полноценная ванная комната, которая также оснащена окном со стеклянными жалюзи. Она спрятана за перегородками, а вот центральная часть, где установлена тумба с раковиной, может оставаться как открытой, так и закрываться с помощью двери или плотной шторы.
В заключение стоит отметить, что базовая модель «Ласточкин хвост» предлагается по вполне демократичной цене – около 51 тыс. долларов. Если же заказчики пожелают изменить или дополнить комплектацию, ее стоимость будет увеличиваться согласно выбранным опциям.
В продолжение темы предлагаем заглянуть в не менее удивительные и уютные крошечные дома, спроектированные командой португальской компании Madeiguincho.
А вот познавательное видео нашего канала:
